HCII kleiner Gürtelförderer
Cat:Gürtelförderer
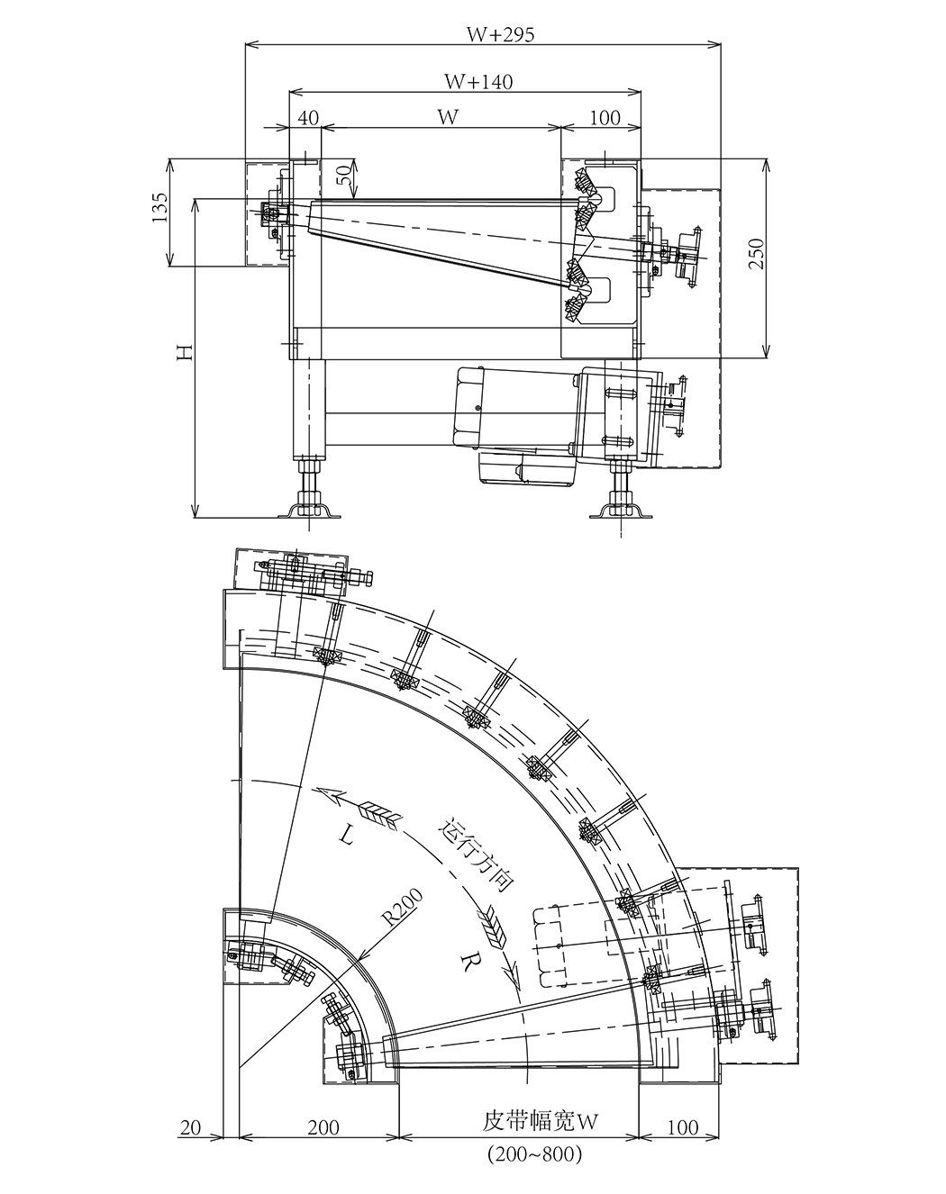
Durch die Zusammenarbeit zwischen dem Leitrad und der Führungsschiene kann der Gürtel gezogen und zum Laufen geführt w...
Fortgeschrittene Struktur, hochwertige Leistung, einfach zu bedienen, hohe Zuverlässigkeit und Haltbarkeit.
Die Drehgürtel -Drehmaschine ist eine übliche Förderausrüstung, die hauptsächlich zum Übertragen von Materialien von einer Gürtelförderleitung auf einen weiteren 90 -Grad- oder 180 -Grad -Umkehrgürtelförderer verwendet wird. Es besteht aus Komponenten wie Gürteln, Rahmen, Antriebswalzen, Umkehrungswalzen, tragenden Paletten, Returnwalzen und Spannungsgeräten. Das Material des Förderbands der Gürtelentwende-Maschine umfasst verschiedene Materialien wie PVC, PU, PVK usw. Zusätzlich zur Vermittlung gewöhnlicher Materialien kann er auch den Transport von Materialien mit speziellen Anforderungen wie Ölwiderstand, Säure und Alkali-Korrosionswiderstand sowie Anti-Statik erfüllen.3333.

Durch die Zusammenarbeit zwischen dem Leitrad und der Führungsschiene kann der Gürtel gezogen und zum Laufen geführt w...
Durch die Zusammenarbeit zwischen dem Leitrad und der Führungsschiene kann der Gürtel gezogen und zum Laufen geführt werden.
Merkmale: Geringe Kosten, Lichtlast und niedrige Geschwindigkeit.
Standarddimension
Hcii-s
| Gürtelbreite | 200 | 300 | 400 | 500 |
| Förderbreite | 520 | 620 | 720 | 820 |
| Winkel | 90 | Motorleistung | 90W 、 120W 、 200W |
| Höhe | 270 bis 1100 Fuß hoch mit | Leistung | AC100V (Einzelphase) · AC200V (Einzelphasen) · AC200V (dreiphasige) |
| Geschwindigkeit | Feste/variable Geschwindigkeit | Gürtel | Polyurethangürtel |
| Fähigkeit | 10 kg/eingestellt (bei horizontal dispergierter Belastung) |
Wenn sich bewegende Beutelgüter formulieren, können Sie bitte 40% der abfeueren Fähigkeitsdaten behalten.
Hcii-m
| Gürtelbreite | 300 | 400 | 500 | 600 |
| Förderbreite | 680 | 780 | 880 | 980 |
| Winkel | 90 | Motorleistung | 200W 、 400W |
| Höhe | Bitte geben Sie an, die Beine sind optional | Leistung | AC200V (dreiphasige) |
| Geschwindigkeit | Feste Geschwindigkeit | Gürtel | Polyurethangürtel |
| Fähigkeit | 40 kg/eingestellt (wenn horizontal verteilt) |
Wenn sich bewegende Beutelgüter formulieren, können Sie bitte 40% der abfeueren Fähigkeitsdaten behalten.
HCII-S-Gürtelgeschwindigkeit
| Verhältnis | Geschwindigkeit Nr. | Feste Geschwindigkeit 50/60 (Hz) (m/min) | Geschwindigkeit Nr | Variable Geschwindigkeit 50/60 (Hzx (m/min) |
| 1/180 | T1 | 16./1.9 | H1 | 0,11 ~ 2,1 |
| 1/2050 | T2 | 1,8/2.2 | H2 | 0,13 ~ 2,5 |
| 1/2020 | T3 | 2.3/2.8 | H3 | 0,16 ~ 3,1 |
| 1/90 | T4 | 3.1/3.7 | H4 | 0,21-4,2 |
| 1/75 | T5 | 3.8/4.5 | H5 | 0,25 ~ 5,0 |
| 1/60 | T6 | 4.7/5.6 | H6 | 0,31 ~ 6,2 |
| 1/50 | T7 | 5.6/6.7 | H7 | 0,38 ~ 7,5 |
| 1/36 | T8 | 7.8/9.4 | H8 | 0,52-10,4 |
| 1/30 | T9 | 9.3/11.2 | H9 | 0,63 ~ 12,5 |
| 1/25 | T10 | 11.3/13.5 | H10 | 0,75 ~ 15,0 |
| 1/18 | T11 | 15.6/18.7 | H11 | 1.04 ~ 20,8 |
| 1/15 | T12 | 18.8/22.5 | H12 | 1,25 ~ 25,0 |
| 1/12.5 | T13 | 22.5/27.0 | H13 | 1,50 ~ 30.0 |
HCII-M-Gürtelgeschwindigkeit
| Verhältnis | Geschwindigkeit Nr. | Feste Geschwindigkeit 50/60 (Hz) (m/min) |
| 1/2020 | T1 | 15/18 |
| 1/90 | T2 | 20/24 |
Geschwindigkeitsberechnung der festen Geschwindigkeit: Drehgeschwindigkeit 1500/1800 U/min (50/60 Hz), Antriebsrolle ф 82,3, Fahrwirkungsgrad: 95%
Geschwindigkeitsberechnung der variablen Geschwindigkeit: Drehgeschwindigkeit 2000 U / min (50; 60 Hz), Antriebsrolle ф82.3, Antriebseffizienz: 95%
Drawing

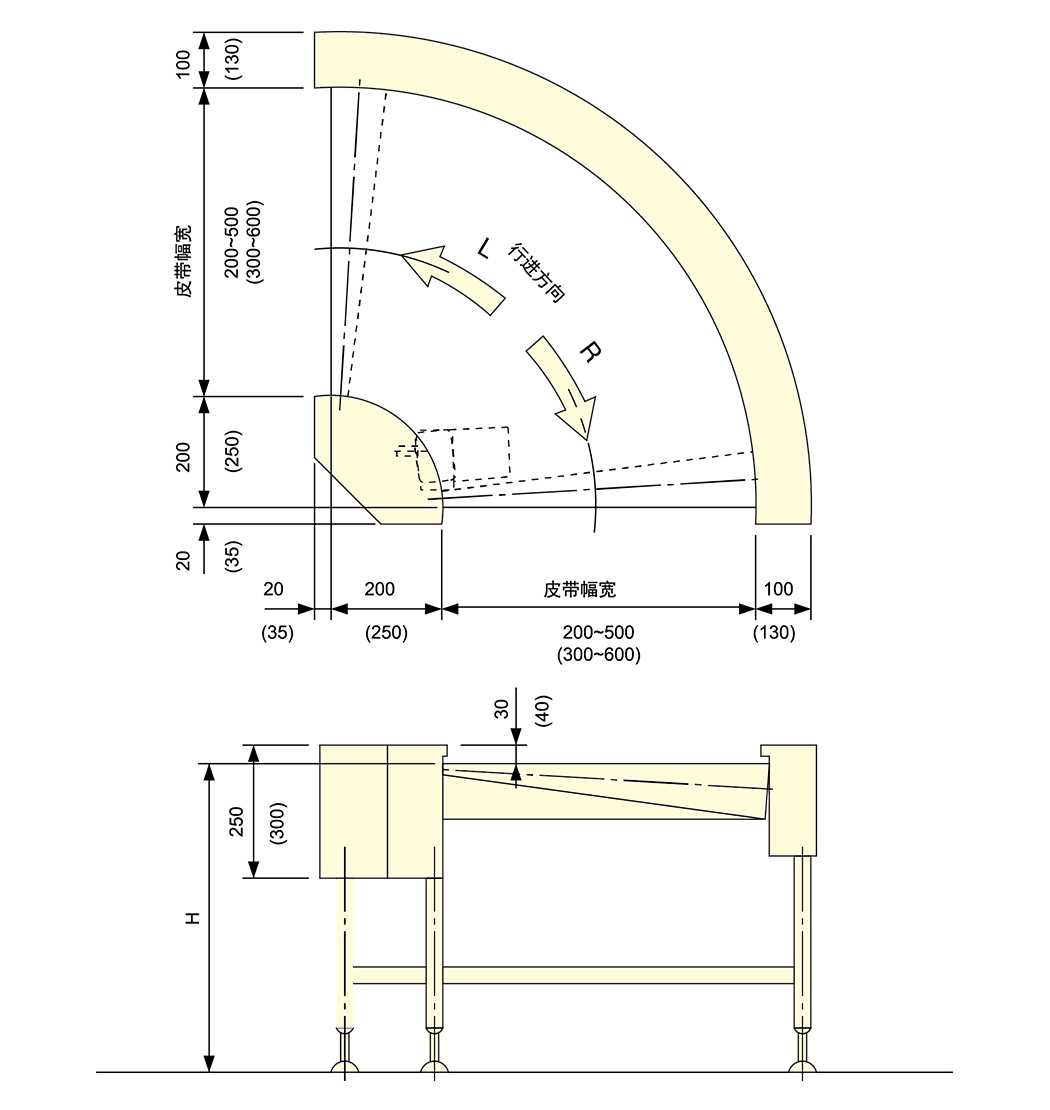
Durch die Zusammenarbeit zwischen dem Leitrad und der Führungsstange wird der Gürtel gezogen und zum Laufen geführt. ...
Durch die Zusammenarbeit zwischen dem Leitrad und der Führungsstange wird der Gürtel gezogen und zum Laufen geführt.
Merkmale: Niedriges Geräusch, hohe Geschwindigkeit und sogar Riemenkraft.
Standarddimension
| Gürtelbreite | 200 | 300 | 400 | 500 | 600 | 700 | 800 |
| Förderbreite | 520 | 620 | 720 | 820 | 920 | 1020 | 1120 |
| Winkel | 90 | Motorleistung | 200W 、 370W 、 750W |
| Höhe | 380 bis 1100 Fuß hoch mit | Leistung | A (AC110V-Einphase) B (AC200V-Einphase) C (AC200V/380 V Dreiphasen) |
| Geschwindigkeit | Feste Geschwindigkeit | Gürtel | Polyurethangürtel |
| Fähigkeit | 100 kg/eingestellt (bei horizontal dispergierter Belastung) |
Wenn sich bewegende Beutelgüter formulieren, können Sie bitte 40% der abfeueren Fähigkeitsdaten behalten.
Gürtelgeschwindigkeit
| Verhältnis | Geschwindigkeit Nr. | Feste Geschwindigkeit 50/60 (Hz) (m/min) | Geschwindigkeit Nr. | Variable Geschwindigkeit 50 Hz (m/min) |
| 1/180 | T1 | 1.6/1,9 | H1 | 0.09-1.7 |
| 1/2050 | T2 | 1,9/2.3 | H2 | 0,1-2,1 |
| 1/2020 | T3 | 2.4/2.9 | H3 | 0,13-2,6 |
| 1/90 | T4 | 3.2/3.8 | H4 | 0,17-3,5 |
| 1/75 | T5 | 3.8/4.6 | H5 | 0,2-4,2 |
| 1/60 | T6 | 4,9/5.8 | H6 | 0,25-5,1 |
| 1/50 | T7 | 5.8/6.9 | H7 | 0,3-6,2 |
| 1/36 | T8 | 8/9.5 | H8 | 0,4 ~ 8,6 |
| 1/30 | T9 | 9.5/11.5 | H9 | 0,5-10,4 |
| 1/25 | T10 | 11.5/13.7 | H10 | 0,6-12,4 |
| 1/18 | T11 | 15.9/19 | H11 | 0,9-17,3 |
| 1/15 | T12 | 19.3/22.3 | H12 | 1 ~ 20,6 |
| 1/12.5 | T13 | 23/27.4 | H13 | 1.2-24.8 |
| 1/7,5 | T14 | 38.3/45.8 | H14 | 2.1-41.4 |
| 1/5 | T15 | 57.5/68.6 | H15 | 3.1-62 |
| 1/3.6 | T16 | 79,9/95.4 | H16 | 4.3-86.1 |
| 1/3 | T17 | 95.8/114.4 | H17 | 5.2-103.4 |
Geschwindigkeitsberechnung der festen Geschwindigkeit: Drehgeschwindigkeit 1500/1800 U/min (50/60 Hz), Antriebsrolle ф 82,3, Fahrwirkungsgrad: 95%
Geschwindigkeitsberechnung der variablen Geschwindigkeit: Drehgeschwindigkeit 2000 U / min (50; 60 Hz), Antriebsrolle ф82.3, Antriebseffizienz: 95%
Drawing

Durch die Zusammenarbeit zwischen der Kette und dem Führungsrad kann der Gürtel gezogen und geführt werden. Merkmal...
Durch die Zusammenarbeit zwischen der Kette und dem Führungsrad kann der Gürtel gezogen und geführt werden.
Merkmale: Schwere Last und schnelle Geschwindigkeit.
Standarddimension
| Gürtelbreite | 400 | 600 | 800 | 1000 | 1200 | 1400 | 1600 | 1800 |
| Förderbreite | 525 | 725 | 925 | 1125 | 1325 | 1525 | 1725 | 1925 |
| Winkel | 90 | Motorleistung | 370W 、 750W 、 1,1 kW 、 1,5 kW 、 2,2 kW |
| Höhe | 550 bis 2000 Fuß hoch mit | Leistung | A (AC110V-Einphase) B (AC200V-Einphase) C (AC200V/380 V Dreiphasen) |
| Geschwindigkeit | Feste Geschwindigkeit | Gürtel | Poly (N-Vinyl Carbazol) |
| Fähigkeit | 200 kg/eingestellt (bei horizontal dispergierter Belastung) |
Wenn sich bewegende Beutelgüter formulieren, können Sie bitte 40% der abfeueren Fähigkeitsdaten behalten.
Gürtelgeschwindigkeit
| Verhältnis | Geschwindigkeit Nr. | Festgeschwindigkeit 50/60 (Hz) (m/min | Geschwindigkeit Nr. | Variable Geschwindigkeit 50 Hz (m/min) |
| 1/2040 | T1 | 2.6/3.0 | H1 | 1.0-2.6 |
| 1/2020 | T2 | 2,8/3,5 | H2 | 1.1-2.8 |
| 1/2000 | T3 | 3.5/4.2 | H3 | 1,4 ~ 3,5 |
| 1/90 | T4 | 4.0/6.7 | H4 | 1,6 ~ 4.0 |
| 1/80 | T5 | 4.4/5.4 | H5 | 1.8-4.4 |
| 1/70 | T6 | 4,9/5.8 | H6 | 2.0-4.9 |
| 1/60 | T7 | 5.8/7.0 | H7 | 2.3-5.8 |
| 1/50 | T8 | 7.0/8.4 | H8 | 2,8 ~ 7,0 |
| 1/45 | T9 | 7.7/9.3 | H9 | 3.1 ~ 7,7 |
| 1/40 | T10 | 8.6/10.5 | H10 | 3.4 ~ 8,6 |
| 1/30 | T11 | 11.6/14.0 | H11 | 4.7 ~ 11.6 |
| 1/25 | T12 | 14.0/16.8 | H12 | 5.6 ~ 14.0 |
| 1/20 | T13 | 17.5/21.0 | H13 | 7.0-17.5 |
| 1/15 | T14 | 23.3/28.0 | H14 | 9.3 ~ 23.3 |
| 1/10 | T15 | 35.0/41.9 | H15 | 14.0-35.0 |
| 1/5 | T16 | 70.0/83.8 | H16 | 28.0-70.1 |
Geschwindigkeitsberechnung der festen Geschwindigkeit: Drehgeschwindigkeit 1500/1800 U/min (50/60 Hz), Antriebsrolle ф 82,3, Fahrwirkungsgrad: 95%
Geschwindigkeitsberechnung der variablen Geschwindigkeit: Drehgeschwindigkeit 2000 U / min (50; 60 Hz), Antriebsrolle ф82.3, Antriebseffizienz: 95%
Drawing
Warum sich die Wartung von Rollenförderern direkt auf die Lebensdauer des Systems auswirkt Rollenba...
MEHR LESENWas macht einen Rollenförderer wirklich robust? Ein Schwerlast-Rollenförderer wird nicht durch Marketin...
MEHR LESENWas sind Rollenförderer und warum ist der Typ wichtig? Rollenbahnen sind Materialtransportsyst...
MEHR LESENWarum Rollenbahnen das Rückgrat des Materialtransports bleiben Rollenbahnen Verbessern Sie die...
MEHR LESENHandwerkskunst in die Zukunft bringen.
Nr. 60, Zhenhu North Road, Stadt Hudai, Bezirk Binhu , Wuxi 214100, China
+86 139-2153-1116
+86-510-8558 1519/8558 1530
+86-510-8558 1520







